Опора ППд18 деревянная промежуточная переходная двухцепная IEK

Артикул:
Основные характеристики
| Вид решения | Деревянная |
| Наименование решения | Опоры |
| Группа опоры | Промежуточная |
| Тип опоры | Переходная |
| Количество цепей | Двухцепная |
Описание
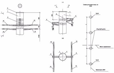
В составе проекта разработаны деревянные опоры ВЛИ 0,4кВ в соответствии с требованиями ПУЭ 7 издания. Опоры ВЛИ 0,4кВ разработаны на базе деревянных стоек длиной 9,5м, 11м, 12м. Одно и двухцепные опоры могут применяться в I-IV районах по ветру и гололёду. На всех типах опор предусмотрена возможность ответвления к вводам в здания в одну и в две стороны от ВЛ двух, четырех и 2х2 жил СИП.
Преимущества
- Соответствие требованиям стандарта СТО ПАО РОССЕТИ.
- Сотрудничество с ведущими российскими энергетическими компаниями.
- Возможность внесения изменений в любое решение силами технических специалистов ГК IEK.
- Короткие сроки поставки компонентов решения обеспечиваются наличием широкой складской и партнёрской сети.

Технические характеристики
| Вид решения | Деревянная |
| Наименование решения | Опоры |
| Группа опоры | Промежуточная |
| Тип опоры | Переходная |
| Количество цепей | Двухцепная |
| Марка опоры | ППд18 |
Комплектация
| Артикул | Наименование | Кол-во |
|---|---|---|
| UKA-31-D16-D95 | Комплект промежуточной подвески КОПМ 1500 (ES 1500, SO 260) IEK | 2 |
| UZA-L50 | Лента бандажная ЛМ-50 (F 2007, COT37, F207, 50 метров в упаковке) IEK | 4 |
| UZA-50-100 | Скрепа СГ-20 100шт/упак (A200, NC 20) IEK | 4 |
| UHH21-D9-260-100 | Хомут для СИП ХС-260 (100шт/упак) IEK | 4 |
| UHH21-D6-180-100 | Хомут для СИП ХС-180 (100шт/упак) IEK | 4 |
Документация
Дополнительные изображения
Модели для проектировщиков