Распределительное устройство РУСп-3х16/3+1х16/5 У1 IP44 IEK

Артикул:
Основные характеристики
| Модель или исполнение | Переносной конечный распределительный щит |
| Номин ток, А | 40 |
| Кол-во СЕЕ розеток 16 А или 400 В или 5Р | 4 |
| Кол-во СЕЕ розеток 32 А или 400 В или 5Р | 0 |
| Кол-во СЕЕ розеток 63 А или 400 В или 5Р | 0 |
Описание
Распределительное устройство для строительных площадок (РУСП) предназначено для безопасного распределения энергии и для подключения различных электроприемников.
Область применения не ограничивается строительными площадками, данное устройство может применяться и в садовых товариществах, и в гаражных кооперативах, и во многих других ситуациях, где необходимо безопасное использование силового электрооборудования.
Преимущества
- Повышенная антикоррозийная стойкость.
- Высококачественное наружное покрытие.
- Малогабаритная конструкция.
- Высокая технологичность и простота использования.
- Высокий уровень электробезопасности.
- Эстетичный внешний вид.
- Сертификат соответствия.
- Возможность крепления на стене.
- Индикация наличия напряжения.

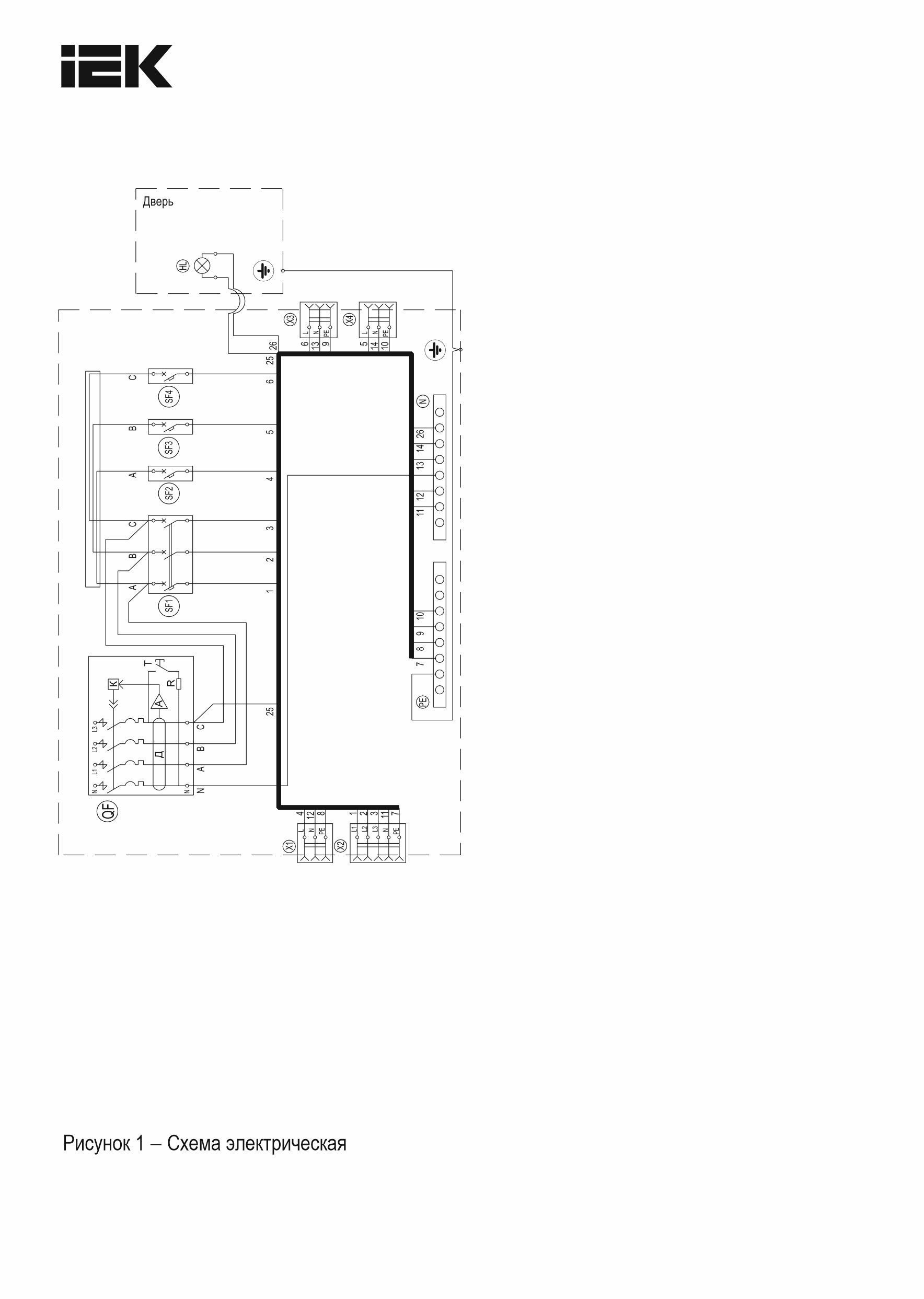
Особенности конструкции
Технические характеристики
| Модель или исполнение | Переносной конечный распределительный щит |
| Номин ток, А | 40 |
| Кол-во СЕЕ розеток 16 А или 400 В или 5Р | 4 |
| Кол-во СЕЕ розеток 32 А или 400 В или 5Р | 0 |
| Кол-во СЕЕ розеток 63 А или 400 В или 5Р | 0 |
| Кол-во штепсель розеток с защ контактом | 4 |
| Номинальное напряжение | 230/400 В |
| Степень защиты - IP | IP44 |
| Ширина, мм | 409 |
| Высота, мм | 257 |
| Глубина, мм | 160 |
| Подключаемая нагрузка-потребляемая мощность, кВА | - |
| Прочность при коротких замыканиях, кА | 4,5 |
| Кол-во щитов с измерительными приборами | 0 |
| Главный выключатель | Дифференциальный автоматический выключатель |
| Конфигурация системы | TN-S |
| Климатическое исполнение | У1 |
| Номин импульсное выдерживаемое напряжение, кВ | 2,5 |
| Номин частота, Гц | 50 |
Документация
Сертификаты
Паспорта и РЭ
Информационные материалы
Дополнительные изображения
Логистические параметры
| Индивидуальная | Транспортная | |
|---|---|---|
| Количество | 1 | 1 |
| Единицы измерения | шт | шт |
| Тип упаковки | ГОФРОКОРОБ | ГОФРОКОРОБ |
| Материал упаковки | ГОФРОКАРТОН ТРЕХСЛОЙНЫЙ | ГОФРОКАРТОН ТРЕХСЛОЙНЫЙ |
| Штрихкод | 4606056134681 | 4606056134681 |
| Вес брутто, кг | 7.6 | 7.6 |
| Вес нетто, кг | 7.3 | 7.3 |
| Объем, м^3 | 0.02697 | 0.02697 |
| Длина, см | 42 | 31 |
| Высота, см | 19.5 | 20 |
| Ширина, см | 31 | 43.5 |
| Способ нанесения информации | На стикер | На стикер |